Vila s celkovou plochou 242,1 m² se nachází na prestižní adrese Komenského náměstí v Brandýse nad Labem. Tento výjimečný dům je zajímavou investiční příležitostí s širokými možnostmi využití a je vhodný pro vícegenerační bydlení, případně ke komerčním účelům.
Hlavní přednosti:
Vstup do vily je umožněn přímo z Komenského náměstí hlavním vchodem skrz vlastní předzahrádku, kterým se dostanete do vstupní haly. Další možností je zadní vchod přes dvůr, který navazuje na centrální schodiště.
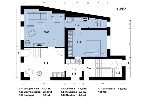
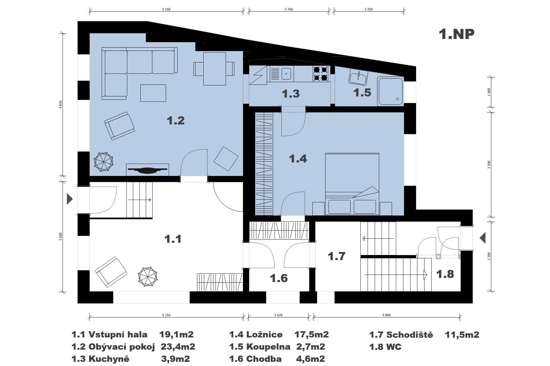
V přízemí je byt 2+kk o ploše 47,5 m², který je vhodný pro modifikaci na komerční využití. V 2.NP se nachází byt 2+1 o rozloze 73,2 m², který lze upravit na 3+kk. V podkroví se je samostatná ložnice o ploše 17,9 m², a dále půda o ploše 50,4 m², která nabízí možnost rozšíření o další byty, případně ateliér, kancelář.
Dům byl postaven v období první republiky a zachoval si původní architektonické prvky, například dřevěná špaletová okna, vnitřní obklady a podlahy. Přitom je technický stav velmi dobrý.
Dispozice a technické parametry:
POZEMEK
369 m2
PLOCHA NP
242 m2
PODLAŽÍ
4
PARKOVÁNÍ
ANO
LOKALITA
CENTRUM
OMEZENÍ
ŽÁDNÁ
Díky svému umístění na Komenského náměstí v centru nabízí tato vila mimořádné příležitosti nejen pro bydlení, ale i podnikání. Svým potenciálním klientům tak budete na dosah, dále díky možnosti umístění reklamy na fasádu, případně oplocení, budete viditelní a parkoviště sousedící s vilou zajistí klientům komfortní příjezd.
Pokud vás zajímají další informace, tak klikněte na IKONKU.
14 460 000 CZK
Včetně kompletního servisu makléře a právních služeb.
"Znáte pravidlo 10 000 hodin? Aby se člověk stal v dané oblasti expertem, musí strávit danou činnosti více než 10 000 hodin. Pak se může považovat za experta. V mé 13-ti leté praxi jsem toto číslo již hluboce přesáhl, proto jsem si jistý svou prací, za kterou stojí výsledky."

Na těchto stránkách naleznete realitní tipy a články. Věříme, že vám tyto informace pomohou v orientaci při nákupu či prodeji nemovitosti. Za každým prodejem nemovitosti se totiž skrývá lidský příběh. A to je důvod, proč by nikdo neměl tak důležitý životní krok podceňovat. Ani prodávající, ani makléř. Věříme, že zvolíte tu správnou cestu.