|
DISPOZICE
5+KK |
PLOCHA
226 m2 |
|
POZEMEK
1195 m2 |
PENB
C |
|
TYP
OSOBNÍ |
CENA
24 800 000 |
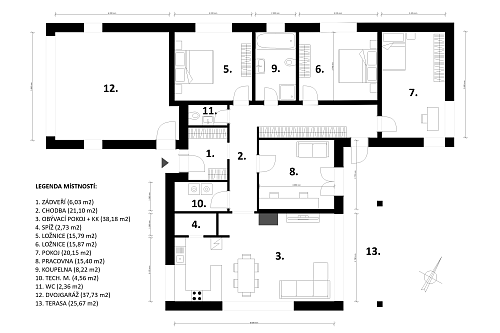
Novostavba přízemního rodinného domu o dispozici 5+kk a užitné ploše 225,85 m² (obytná plocha 188,12 m² + garáž 37,73 m²) stojí na pozemku o výměře 1195 m² v klidné části obce Sibřina (u Křenice), u Prahy. Nabízí nadstandardní komfort, soukromí a výborné napojení na metropoli.,
Hlavní přednosti:
Dispozice:
Předsíň navazuje na chodbu, ze které je přístup do všech obytných místností.
Dominantou je prostorný obývací pokoj s kuchyňským koutem a vstupem na krytou terasu orientovanou na severovýchod. Dále se v domě nachází tři ložnice, pracovna (také se vstupem na terasu), koupelna s vanou a sprchovým koutem, samostatné WC, technická místnost a spižírna. Garáž pro dvě auta je součástí domu. Součástí pozemku je také samostatný objekt (dílna) se dvěma místnostmi (po 11 m²).
Technické parametry:
Dům je postaven v moderním standardu s důrazem na kvalitu provedení, úsporu energií a dlouhou životnost konstrukcí. Nosné stěny jsou z cihel Porotherm o tl. 30 cm, zateplené 20 cm polystyrenu. Střešní krytinu tvoří betonová taška. Okna jsou plastová s trojskly s předokenními žaluziemi.
Vytápění domu je řešeno podlahovým topením v kombinaci s krbem v obývacím pokoji. V každé místnosti je termostat pro individuální nastavení teploty. Garáž je vytápěná pomocí radiátorů, takže ji lze využívat i v zimě. Zdrojem tepla je plynový kondenzační kotel.
Dům je napojen na všechny inženýrské sítě – tlakovou kanalizaci, obecní vodovod a plyn. Kamerový zabezpečovací systém zvyšuje pocit jistoty a ochrany majetku.
Na zahradě se nachází bazén o rozměrech 8 × 4 metry a hloubce 1,4 metru. Je vybaven posuvným krytím, protiproudem, tepelným čerpadlem a technologií slané vody.
Sibřina leží na východním okraji Prahy, v oblíbené rezidenční lokalitě s výborným napojením na hlavní město. Na metro Depo Hostivař nebo Háje dojedete autem za 15 až 20 minut. V okolí je mateřská i základní škola, potraviny, restaurace, sportoviště a cyklostezky. Lokalita tak kombinuje klid venkova a blízkost metropole.
Pokud vás zajímají podrobné technické informace, tak klikněte na IKONKU.
"Znáte pravidlo 10 000 hodin? Aby se člověk stal v dané oblasti expertem, musí strávit danou činnosti více než 10 000 hodin. Pak se může považovat za experta. V mé 13-ti leté praxi jsem toto číslo již hluboce přesáhl, proto jsem si jistý svou prací, za kterou stojí výsledky."

Na těchto stránkách naleznete realitní tipy a články. Věříme, že vám tyto informace pomohou v orientaci při nákupu či prodeji nemovitosti. Za každým prodejem nemovitosti se totiž skrývá lidský příběh. A to je důvod, proč by nikdo neměl tak důležitý životní krok podceňovat. Ani prodávající, ani makléř. Věříme, že zvolíte tu správnou cestu.