|
DISPOZICE
4+1 |
PLOCHA
122,9 m2 |
|
PODLAŽÍ
2 |
POZEMEK
659 m2 |
|
GARÁŽ
2x |
CENA
16 500 000 CZK |
Rodinný dům o dispozici 4+1 s plochou 122,9 m2 je situovaný v klidné rezidenční čtvrti v Roztokách u Prahy, v ulici Wolkerova. Dům je dvoupodlažní a prošel kompletní rekonstrukcí v roce 2014, díky které odpovídá vysokým standardům moderního a komfortního bydlení.
Hlavní přednosti:
Dispozice:
Ve zvýšeném přízemí se nachází obývací pokoj (20,3 m2), prostorná kuchyně s jídelnou (25,7 m2) a schodištěm do patra, vstupní chodba, spíž, technická místnost a koupelna. Pobytové místnosti jsou orientovány na jihozápad. Přímou součástí přízemí jsou také dvě samostatné garáže s dílnou a skladem. Střecha garáží je pochozí a lze ji využívat jako terasu.
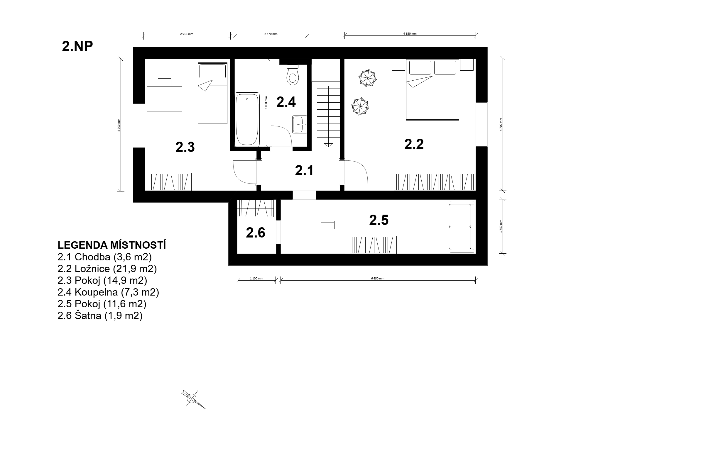
V patře (podkroví) jsou situovány dvě ložnice, pracovna se šatnou a druhá koupelna. Dispozice domu je řešena tak, že každý člen rodiny bude mít dostatek soukromí a prostoru.
V prostoru před vstupem do domu a do jedné z garáží se nachází prostorný dvůr, který v letních měsících slouží jako terasa. Prostor nabízí výhled do zahrady i do okolí, zároveň je odstíněn od silnice a poskytuje výborné soukromí. Pozemek má plochu 659 m2.
Technické informace:
Původní stavba pochází z roku 1945. V roce 2014 proběhla kompletní rekonstrukce. Konstrukce je zděná, stropy jsou dřevěné trámové. Dům je kompletně zateplený (polystyren 160 mm), ve střeše je foukaná izolace a okna jsou plastová s izolačními dvojskly. Krytinu tvoří pálené keramické tašky.
Vytápění zajišťuje vlastní plynový kondenzační kotel. V obytných místnostech v přízemí je podlahové vytápění, v 2.NP jsou radiátory.
Nemovitost je napojena na tyto inženýrské sítě – plynovod, vodovod a elektřinu. Dům je dále napojen na veřejnou kanalizaci.
Roztoky u Prahy patří mezi vyhledávané lokality pro klidné rodinné bydlení v těsné blízkosti hlavního města. Nabízí kompletní občanskou vybavenost, ať už mateřské a základní školy v docházkové vzdálenosti, obchody nebo restaurace. Okolí je zároveň bohaté na zeleň a možnosti pro sport i relaxaci, včetně blízkého údolí Vltavy.
Dopravní dostupnost do Prahy je velmi kvalitní. Vlaková zastávka je vzdálena jen několik minut chůze, odtud se za 20 minut dostanete na Masarykovo nádraží. Stanice metra Dejvická je dostupná za cca 20 minut autem.
Pokud vás zajímají podrobné technické informace, tak klikněte na IKONKU.
"Znáte pravidlo 10 000 hodin? Aby se člověk stal v dané oblasti expertem, musí strávit danou činnosti více než 10 000 hodin. Pak se může považovat za experta. V mé 13-ti leté praxi jsem toto číslo již hluboce přesáhl, proto jsem si jistý svou prací, za kterou stojí výsledky."

Na těchto stránkách naleznete realitní tipy a články. Věříme, že vám tyto informace pomohou v orientaci při nákupu či prodeji nemovitosti. Za každým prodejem nemovitosti se totiž skrývá lidský příběh. A to je důvod, proč by nikdo neměl tak důležitý životní krok podceňovat. Ani prodávající, ani makléř. Věříme, že zvolíte tu správnou cestu.