|
DISPOZICE
4+KK |
PLOCHA
220 m2 |
|
POZEMEK
726 m2 |
PENB
B |
|
TYP
OSOBNÍ |
CENA
17 960 000 |
Rodinný dům o dispozici 4+kk a užitné ploše 220 m² stojí na pozemku o celkové výměře 726 m² v klidné rezidenční čtvrti obce Polerady. Nabízí komfortní rodinné bydlení kousek od Prahy.
Hlavní přednosti:
• Prostornost a vybavení domu – Každý člen rodiny bude mít soukromí. Díky velké zahradě a bazénu si užijete celé léto přímo doma.
• Technické vybavení – tepelné čerpadlo a kvalitní zateplení znamenají nízké náklady na provoz. Kvalitní dlažba, sádrové omítky, bezfalcové dveře a značková kuchyň vytváří dojem luxusu.
• Zánovní stav – Dům je novostavba ve výborném technickém stavu, připravený k nastěhování bez dalších investic. O nic se tak nemusíte starat.
• Mateřská škola přímo u domu – Vaše děti budou v bezpečí minutu od domova a ušetříte čas s dopravou.
Dispozice:
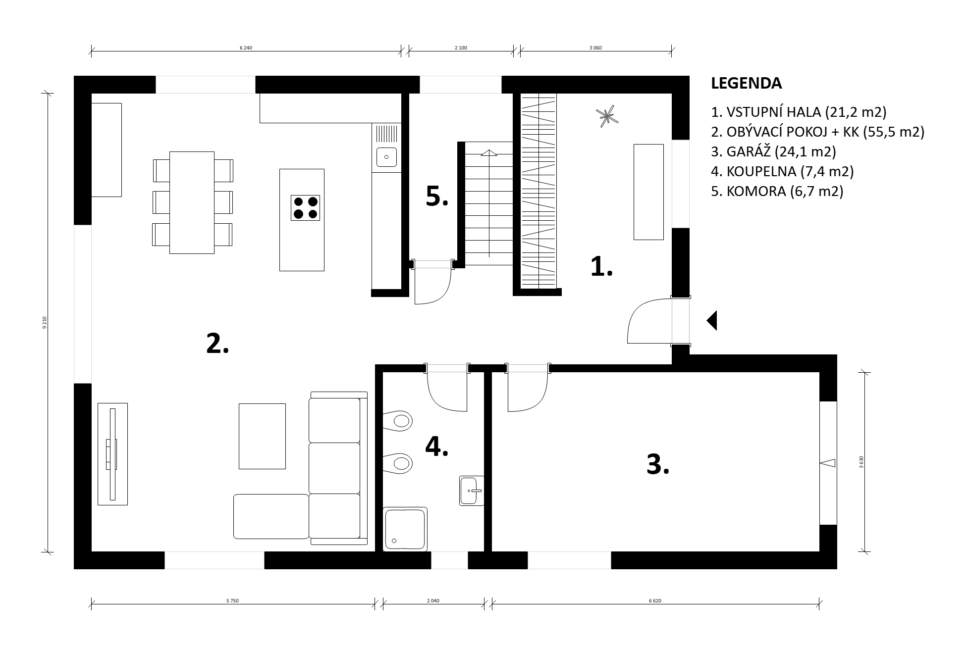
Vstup do domu je přes prostornou chodbu s vestavnou skříní. Ta navazuje na obývací pokoj s kuchyňským koutem o ploše 55,5 m² a vstupem na terasu orientovanou na západ.
V přízemí se dále nachází koupelna se sprchou a garáž pro jedno auto s dálkově ovládanými vraty a s vnitřním vstupem z chodby.
V patře je hlavní ložnice (23,8 m²) s vlastní šatnou a koupelnou se sprchou, dva samostatné pokoje (18,5 m² a 16,8 m²), přičemž jeden má přístup na soukromou terasu. K dispozici je také třetí koupelna s vanou a prostorná prádelna s technickým zázemím (14,2 m²), kterou lze využít jako čtvrtý obytný pokoj.
Technické parametry:
Dům je postaven ve vysokém standardu. Nosné stěny jsou zděné z cihel tl. 300 mm, příčky tl. 250 mm. Vnitřní povrchy tvoří sádrové omítky a velkoformátová dlažba. Obálka budovy je z polystyrenu 160 mm a z oken s trojskly a s integrovanými panty. Konstrukce střechy je z příhradových vazníků.
Vytápění zajišťuje tepelné čerpadlo vzduch–voda Daikin s výkonem 9 kW v kombinaci s podlahovým topením (včetně garáže). Teplota v každé místnosti je regulovaná samostatnými termostaty. Dům je napojen na tlakovou kanalizaci. Na pozemku je retenční nádrž pro dešťovou vodu s objemem 4 m³.
Další nadstandartní vybavení zahrnují bezpečnostní vchodové dveře, bezfalcové vnitřní dveře, kamerové zabezpečení nebo kuchyně se značkovými spotřebiči.
Na zahradě je bazén o rozměrech 7 x 3,5 m s hloubkou 1,5 m s protiproudem a posuvným zastřešením. Pozemek je oplocen ze ztraceného bednění. Vjezd na pozemek je řešen přes posuvnou bránu, před domem je parkovací plocha s místem pro několik aut. Povrchy parkování, terasy a chodníků jsou ze zámkové dlažby.
Dům se nachází v nové zástavbě v obci Polerady. V obci je mateřská škola, dětské hřiště, sportoviště, potraviny a obecní úřad.
Dopravní dostupnost je výborná – autem jste za 6 minut v centru Brandýsa nad Labem, do 20 minut dojedete na metro Černý Most po dálnici D10. Pravidelný autobusový spoj zajišťuje spojení do Letňan, Kostelce a Brandýsa.
Pokud vás zajímají podrobné technické informace, tak klikněte na IKONKU.
"Znáte pravidlo 10 000 hodin? Aby se člověk stal v dané oblasti expertem, musí strávit danou činnosti více než 10 000 hodin. Pak se může považovat za experta. V mé 13-ti leté praxi jsem toto číslo již hluboce přesáhl, proto jsem si jistý svou prací, za kterou stojí výsledky."

Na těchto stránkách naleznete realitní tipy a články. Věříme, že vám tyto informace pomohou v orientaci při nákupu či prodeji nemovitosti. Za každým prodejem nemovitosti se totiž skrývá lidský příběh. A to je důvod, proč by nikdo neměl tak důležitý životní krok podceňovat. Ani prodávající, ani makléř. Věříme, že zvolíte tu správnou cestu.