Pronájem bytu 1+1
náměstí Na Balabence
Pronájem bytu 1+1
náměstí Na Balabence
Byt 1+1 o ploše 32,6 m² se nachází v 6. nadzemním podlaží revitalizovaného cihlového domu s výtahem, přímo na náměstí Na Balabence, Praha 9 – Libeň. Díky své velikosti, příjemné atmosféře a vynikající dostupnosti MHD i občanské vybavenosti je byt vhodnou volbou pro jednotlivce nebo pár hledající bydlení v širším centru Prahy.
Hlavní přednosti bytu:
• Modernizovaný interiér – Byt prošel decentními úpravami. Dominují světlé barvy, v obývacím pokoji jsou renovované parkety, kuchyňská linka je zcela nová.
• Plně vybavená kuchyň – Součástí kuchyně je lednička, trouba, indukční varná deska, digestoř a dřez. V kuchyni je i pračka.
• Skvělá dostupnost a okolí – Přímo před domem je tramvajová zastávka Balabenka, stanice metra Palmovka 750 m. Park a základní škola hned u domu. OC Galerie Harfa, O2 Aréna v docházkové vzdálenosti.
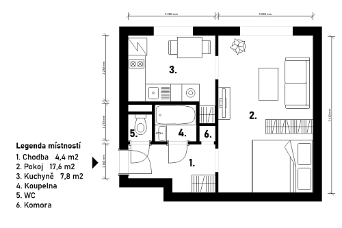
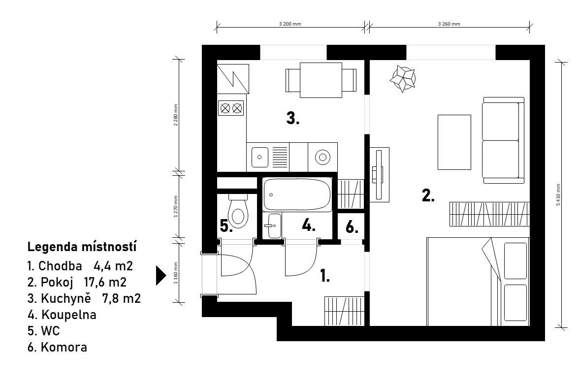
Dispozice:
Byt sestává ze vstupní chodby s šatní skříní, samostatné koupelny, WC a komory. Z chodby se vchází do světlého obývacího pokoje o ploše 17,6 m², ze kterého je dále vstup do samostatné kuchyně. Okna bytu jsou orientována na severovýchod. Byt se nabízí jako nezařízený.
|
DISPOZICE 1+1 |
VYBAVENÍ NE |
|
PODLAŽÍ 6. NP |
PARKOVÁNÍ NE |
|
VYTÁPĚNÍ PLYN |
DOSTUPNOST IHNED |
Majitel bytu mě požádal, abych zájemcům odeslal k vyplnění dotazník. Předem děkuji za Váš čas, věřím, že jeho vyplnění Vám zabere jen pár minut.
PRO SPUŠTĚNÍ DOTAZNÍKU PROSÍM KLIKNĚTE NA IKONU
nájem 14 000 Kč
poplatky 2 500 Kč - 1 osoba
(teplo 900 Kč, výtah 100 Kč, společná elektřina 100 Kč, úklid 100 Kč, odpady 100 Kč, teplá voda 800 Kč, vodné a stočné 400 Kč)
vratná kauce 20 000 Kč
provize 16 940 Kč
nájem 14 000 Kč
poplatky 2 500 Kč (1 osoba)
CELKEM 16 500 Kč
+ přepis elektřiny na nájemce
"Znáte pravidlo 10 000 hodin? Aby se člověk stal v dané oblasti expertem, musí strávit danou činnosti více než 10 000 hodin. Pak se může považovat za experta. V mé 13-ti leté praxi jsem toto číslo již hluboce přesáhl, proto jsem si jistý svou prací, za kterou stojí výsledky."

Na těchto stránkách naleznete realitní tipy a články. Věříme, že vám tyto informace pomohou v orientaci při nákupu či prodeji nemovitosti. Za každým prodejem nemovitosti se totiž skrývá lidský příběh. A to je důvod, proč by nikdo neměl tak důležitý životní krok podceňovat. Ani prodávající, ani makléř. Věříme, že zvolíte tu správnou cestu.