|
DISPOZICE
5+1 |
PLOCHA
152 m2 |
|
PODLAŽÍ
2 |
LOKALITA
MLÉKOJEDY |
|
TYP
DŮM |
CENA
5 255 000 |
Dvoupodlažní rodinný dům o podlahové ploše 152 m² stojí na pozemku o výměře 264 m² v obci Mlékojedy, přímo u řeky Labe a na konci klidné slepé ulice, na kterou navazuje cyklostezka. Dům je určen k celkové rekonstrukci.
Hlavní přednosti nemovitosti:
Dispozice a popis domu:
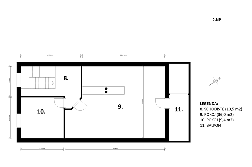
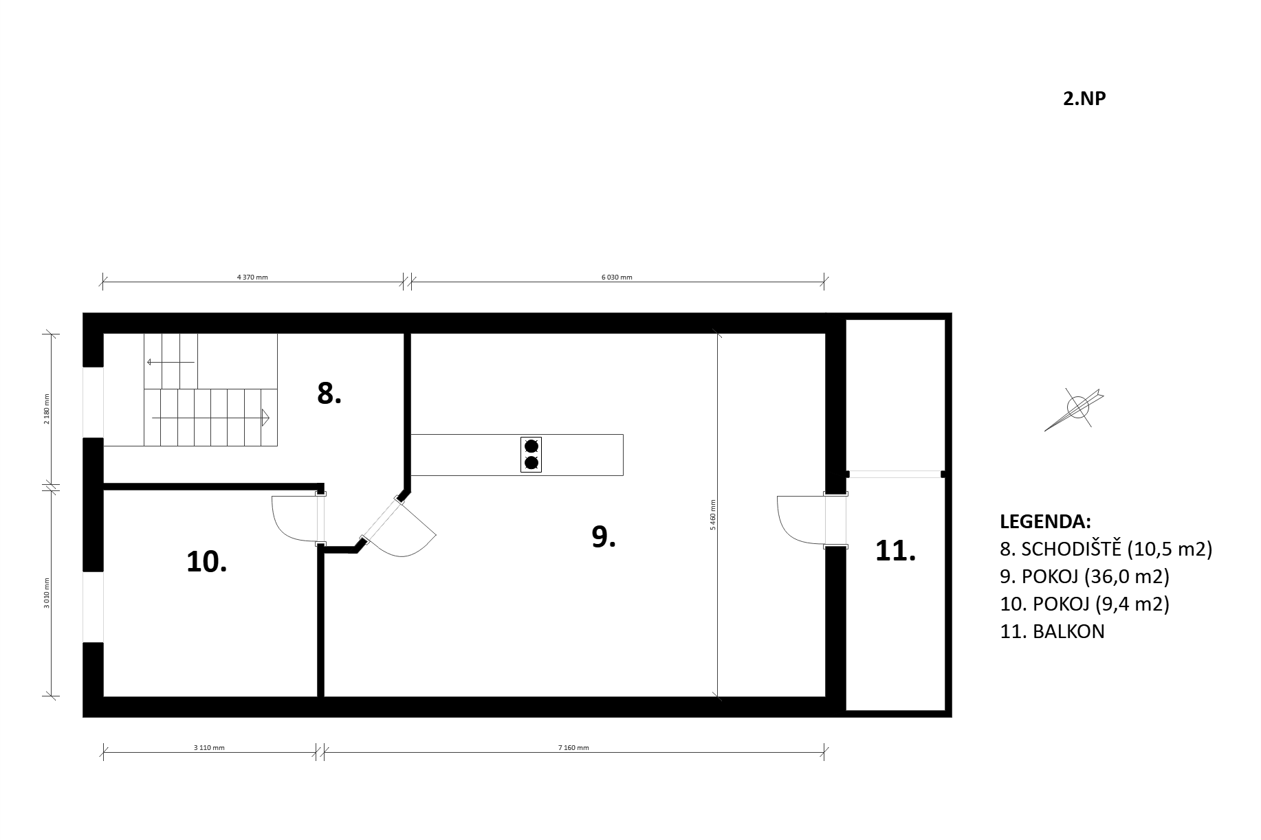
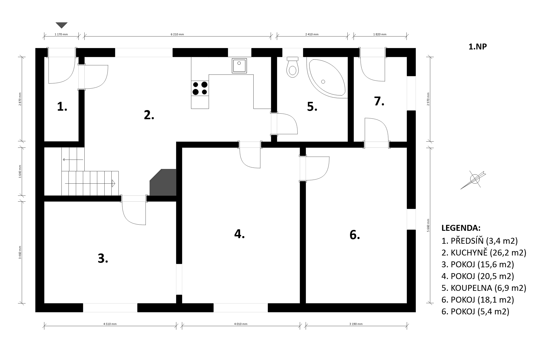
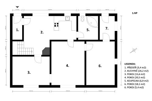
V přízemí se nachází vstupní předsíň, centrální obytná místnost s kuchyňským koutem, krbem a schodištěm do podkroví. Dále jsou zde tři samostatné pokoje a boční vchod. Kuchyň je orientována do zahrady na jihovýchod, obytné místnosti do ulice na severozápad. V podkroví se nachází chodba, dva pokoje a balkon.
Technické a stavební informace:
Dům je zděný, postavený z cihel a tvárnic, se stropy z dřevěných trámů. Střecha je sedlová s plechovou krytinou. Konstrukce odpovídá době výstavby a vyžaduje kompletní rekonstrukci. Úpravy byly již částečně zahájeny, například výměnou oken za plastová. Objekt je napojen na elektřinu, vodovod a kanalizaci. Vytápění v současnosti zajišťuje krb v centrální místnosti.
Mlékojedy jsou menší, klidná obec přímo u řeky Labe, která navazuje na Tišice. V obci se nachází obchod, mateřská škola a pivnice. Jen pár minut odtud leží pískovna Tišice – oblíbené místo pro koupání, paddleboarding a relaxaci. Okolí je ideální pro cyklistiku, běh i procházky podél řeky. Do okolních měst i do Prahy dojedete pohodlně autem do 30 minut. Do Neratovic, kde je vlakové nádraží, lze dojít pěšky (cca 1,5 km).
Dům se nachází v oblasti označené jako záplavové území Q100, tedy v hladině tzv. stoleté vody. To znamená, že je v lokalitě s rizikem záplav, které mohou nastat ve výjimečných případech (statisticky jednou za 100 let). Dům není umístěn zóně záplavového území Q5 ani Q20, kde by hrozilo pravidelné zaplavování.
Pokud vás zajímají podrobné technické informace, tak klikněte na IKONKU.
"Znáte pravidlo 10 000 hodin? Aby se člověk stal v dané oblasti expertem, musí strávit danou činnosti více než 10 000 hodin. Pak se může považovat za experta. V mé 13-ti leté praxi jsem toto číslo již hluboce přesáhl, proto jsem si jistý svou prací, za kterou stojí výsledky."

Na těchto stránkách naleznete realitní tipy a články. Věříme, že vám tyto informace pomohou v orientaci při nákupu či prodeji nemovitosti. Za každým prodejem nemovitosti se totiž skrývá lidský příběh. A to je důvod, proč by nikdo neměl tak důležitý životní krok podceňovat. Ani prodávající, ani makléř. Věříme, že zvolíte tu správnou cestu.