|
DISPOZICE
3+kk |
PLOCHA
135 m2 |
|
PODLAŽÍ
3.NP |
BALKON
2x |
|
PARKOVÁNÍ
2x |
CENA
13 800 000 CZK |
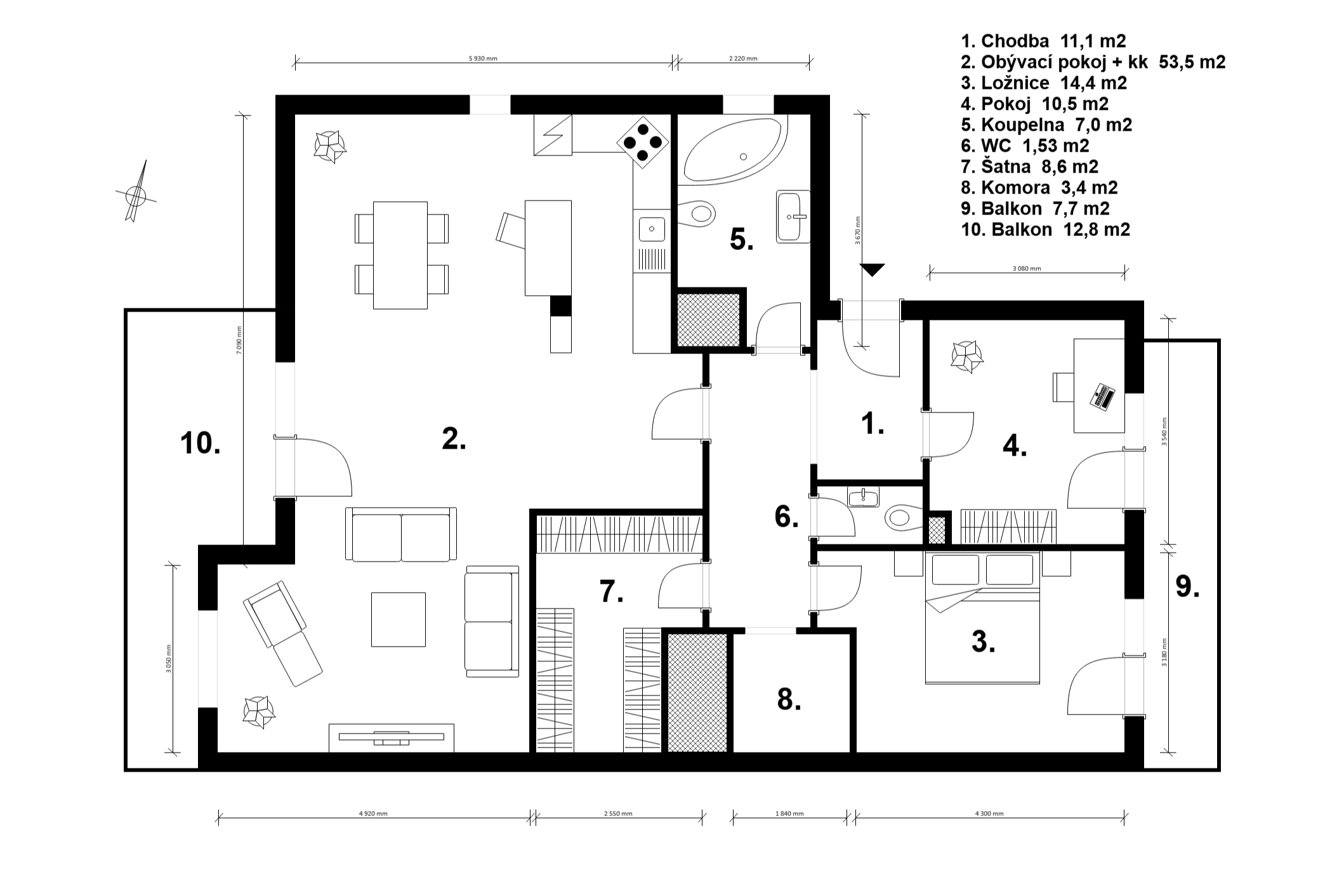
Velmi prostorný byt o dispozici 3+kk je umístěný ve 3. nadzemním podlaží bytového domu, situovaný v klidné rezidenční části Malešice, v ulici Univerzitní. Byt disponuje celkovou plochou 113,2 m², dvěma balkony (dohromady 21,8 m²) a dvěma garážovými stáními v přízemí domu.
Hlavní přednosti:
Dispozice:
Vstup do bytu je přes prostornou chodbu, ze které je přístup do všech místností. Dominantou bytu je obývací pokoj s kuchyňským koutem (56,5 m²) a vstupem na balkon orientovaný na jihozápad. Dále se zde nacházejí dvě ložnice se vstupem na druhý balkon (severovýchod), koupelna, komora a samostatná, nadstandardně velká šatna. Byt je možné jednoduchou úpravou přestavět na dispozici 4+kk. Součástí bytu jsou garáže v přízemí.
Technické informace:
Bytový dům je vytápěn plynovým kotlem. Okna jsou dřevěná. V jednotlivých místnostech jsou zdrojem tepla radiátory. Byt je vybaven bezpečnostním systémem s kamerou. V Ložnicích jsou pro zvýšení komfortu instalovány předokenní žaluzie.
Lokalita patří k nejzelenějším částem Prahy. Dům je umístěn mezi Malešickým lesem a Malešickým parkem, které jsou skvělé pro sport, relaxaci i procházky. V docházkové vzdálenosti se nachází mateřská a základní škola, obchody i další občanská vybavenost. Výborná dopravní dostupnost je zajištěna autobusem na stanici metra Želivského, kam se dostanete během několika minut.
Předmětem prodeje je převod 100% akcií akciové společnosti, která je výlučným vlastníkem této bytové jednotky a garážových stání. Jediným majetkem akciové společnosti je tento byt s garážovým stáním. Pro více informací mě kontaktujte.
Pokud vás zajímají podrobné technické informace, tak klikněte na IKONKU.
"Znáte pravidlo 10 000 hodin? Aby se člověk stal v dané oblasti expertem, musí strávit danou činnosti více než 10 000 hodin. Pak se může považovat za experta. V mé 13-ti leté praxi jsem toto číslo již hluboce přesáhl, proto jsem si jistý svou prací, za kterou stojí výsledky."

Na těchto stránkách naleznete realitní tipy a články. Věříme, že vám tyto informace pomohou v orientaci při nákupu či prodeji nemovitosti. Za každým prodejem nemovitosti se totiž skrývá lidský příběh. A to je důvod, proč by nikdo neměl tak důležitý životní krok podceňovat. Ani prodávající, ani makléř. Věříme, že zvolíte tu správnou cestu.