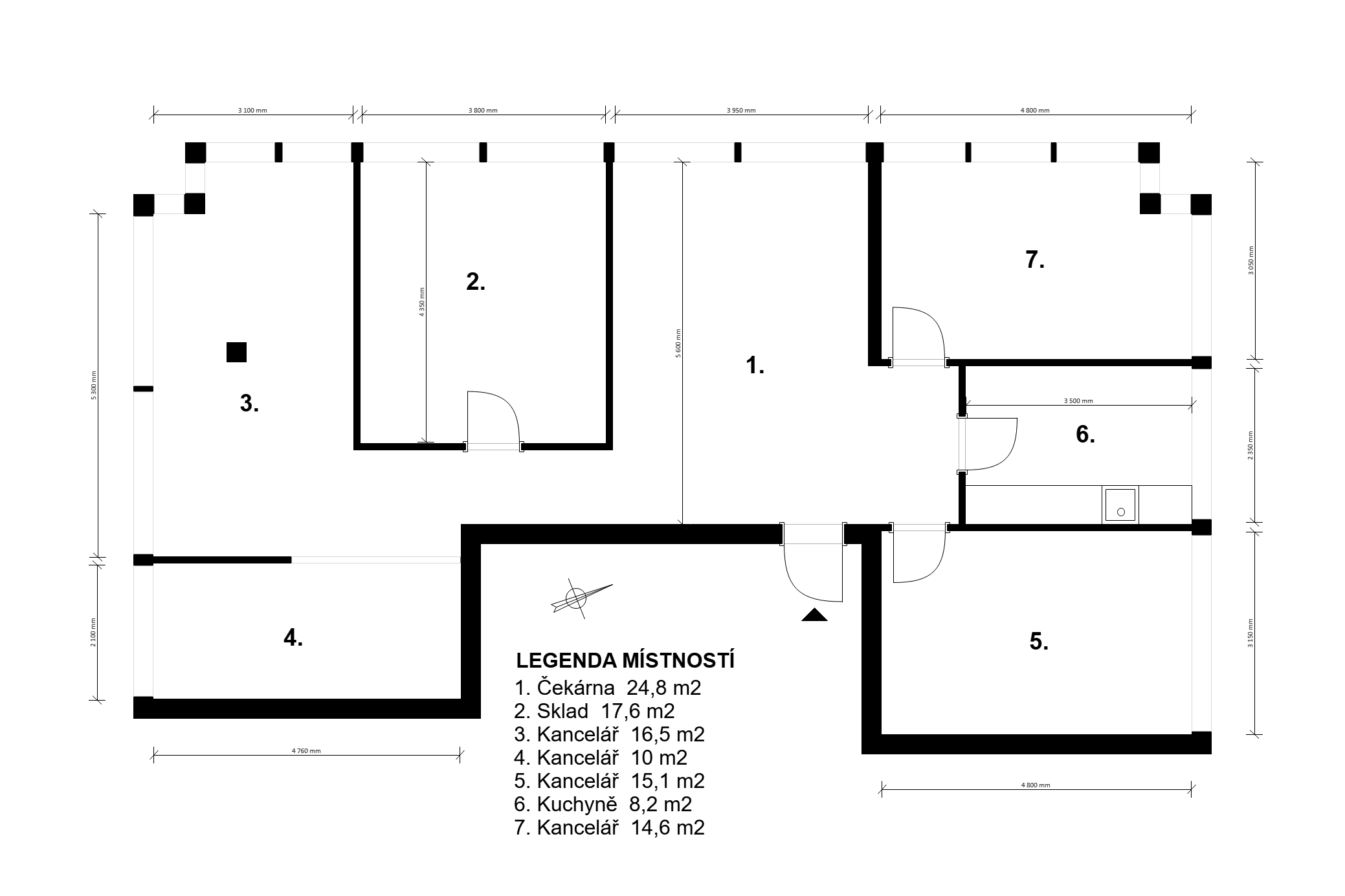
MÍSTNOSTI
7
PLOCHA
106,8 m2
PODLAŽÍ
2.NP
VLASTNICTVÍ
OSOBNÍ
LOKALITA
UL. VINOHRADSKÁ
CENA
7 000 000 CZK
Nabízíme k prodeji komerční jednotku o celkové ploše 106,8 m² umístěnou ve 2. nadzemním podlaží administrativně-rezidenční budovy na frekventované ulici Vinohradská. Prostor je vhodný jak pro kanceláře, studio se službami či sídlo firmy. Jednotka je v osobním vlastnictví.
Hlavní přednosti:
Komerční jednotka:
Současné uspořádání jednotky tvoří několik kancelářských místností oddělených sádrokartonovými příčkami a zázemí s kuchyňkou. Díky konstrukčnímu řešení budovy lze dispozici snadno upravit nebo otevřít do většího open-space prostoru.
To umožňuje přizpůsobit jednotku široké škále podnikatelských aktivit. Jednotlivé místnosti jsou vytápěny pomocí radiátorů. WC se nachází na společné chodbě a je ve správě SVJ.
Budova:
V nižších patrech budovy se nacházejí komerční prostory, ve vyšších patrech bytové jednotky, což přináší přirozený pohyb lidí během celého dne. Budova je v místě jednotky řešena sloupovou konstrukcí. Fasádu tvoří lehký obvodový plášť s velkými prosklenými plochami, které zajišťují dostatek denního světla v celém komerčním prostoru a možnost umístění viditelné reklamy.
Budova se nachází na frekventované ulici Vinohradská a je zároveň propojena s administrativní budovou Vinice Business Centre. V bezprostředním okolí sídlí řada firem a institucí, mimo jiné také sídlo televize Prima.
V docházkové vzdálenosti jsou stanice metra Strašnická a Želivského. Přímo před budovou se nachází tramvajová zastávka.
Pokud vás zajímají podrobné technické informace, tak klikněte na IKONKU.
"Znáte pravidlo 10 000 hodin? Aby se člověk stal v dané oblasti expertem, musí strávit danou činnosti více než 10 000 hodin. Pak se může považovat za experta. V mé 13-ti leté praxi jsem toto číslo již hluboce přesáhl, proto jsem si jistý svou prací, za kterou stojí výsledky."

Na těchto stránkách naleznete realitní tipy a články. Věříme, že vám tyto informace pomohou v orientaci při nákupu či prodeji nemovitosti. Za každým prodejem nemovitosti se totiž skrývá lidský příběh. A to je důvod, proč by nikdo neměl tak důležitý životní krok podceňovat. Ani prodávající, ani makléř. Věříme, že zvolíte tu správnou cestu.